Chinese

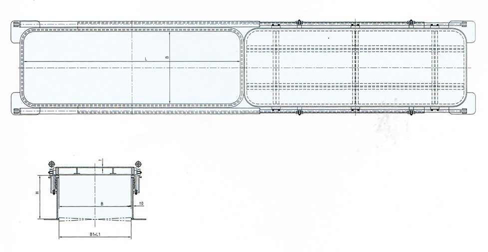
A60 Fireproof hydraulic hatch cover

2017-06-06