2017-06-06

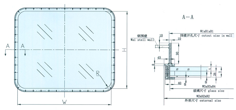
| WxHxR nominal size | W1xH1xR1 opening size of bulkhead | W2xH2xR3 external size | W3xH3xR3 glass size | T glass thickness | |||||
| E(t)+20+6=T | F(t)+20+6=T | ||||||||
| 300x425 | R50 | 352x477 | R76 | 440x565 | R120 | 340x465 | R70 | (8)+20+6=34 | (10)+20+6=36 |
| 355x500 | 407x552 | 495x640 | 395x540 | (8)+20+6=34 | (10)+20+6=36 | ||||
| 400x560 | 452x612 | 540x700 | 440x600 | (8)+20+6=34 | (12)+20+6=38 | ||||
| 450x630 | R100 | 502x682 | R126 | 590x770 | R170 | 490x670 | R120 | (8)+20+6=34 | (12)+20+6=38 |
| 500x710 | 552x762 | 640x850 | 540x750 | (10)+20+6=36 | (15)+20+6=41 | ||||
| 560x800 | 612x852 | 700x940 | 600x840 | (10)+20+6=36 | (15)+20+6=41 | ||||
| 900x630 | 952x682 | 1040x770 | 940x670 | (12)+20+6=38 | (19)+20+6=45 | ||||
| 1000x710 | 1052x762 | 1140x850 | 1040x750 | (12)+20+6=38 | (19)+20+6=45 | ||||
| 1100x800 | 1152x852 | 1240x940 | 1140x840 | (15)+20+6=41 | (19)+20+6=45 | ||||
| 1200x800 | 1252x852 | 1340x940 | 1240x840 | (15)+20+6=41 | (19)+20+6=45 | ||||
| 1600x800 | 1652x852 | 1740x940 | 1640x840 | (15)+20+6=41 | (19)+20+6=45 | ||||