2017-06-06

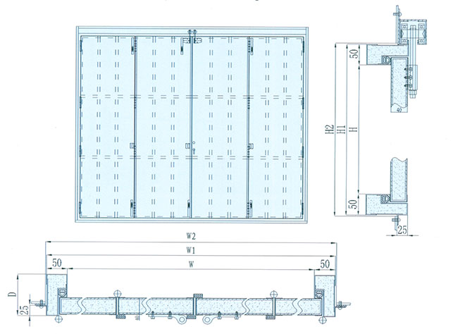
| clear size WxH | door frame W1xH1 | opening size of bulkhead W2xH2 | leaf thickness T | frame depth D |
| 2000x1800 | 2100x1900 | 2105x1905 | 40 | D≥90 |
| 2200x1900 | 2300x2000 | 2305x2005 | 40 | |
| 2400x1950 | 2500x2050 | 2505x2055 | 40 | |
| 2500x2000 | 2600x2100 | 2605x2105 | 40 | |
| 2620x2050 | 2720x2150 | 2725x2105 | 40 |